相關產品
一、裂縫監測站產品簡介
裂(lie)(lie)縫(feng)監(jian)測(ce)站又稱自動遠程(cheng)裂(lie)(lie)縫(feng)測(ce)寬儀,裂(lie)(lie)縫(feng)監(jian)測(ce)站主要用于監(jian)測(ce)滑坡體表面裂(lie)(lie)縫(feng)變化(hua)情況,進行動態監(jian)測(ce),為結構(gou)物表面裂(lie)(lie)縫(feng)等可(ke)視病害(hai)的檢測(ce)提供(gong)解決方案。本產品廣泛應用于地(di)質災害(hai)、巖土工(gong)程(cheng)、建筑工(gong)程(cheng)、交(jiao)通、水利、市政等多個監(jian)測(ce)領域,特別(bie)適用于地(di)表裂(lie)(lie)縫(feng)、卸荷裂(lie)(lie)隙(xi)、房屋或結構(gou)裂(lie)(lie)縫(feng)等相對(dui)位(wei)移的精確監(jian)測(ce)。
在(zai)地質(zhi)災害監測中,能夠實時捕捉地表裂縫的(de)微小變化(hua),為滑坡、崩塌等災害預警提供關鍵數據;在(zai)巖土工(gong)程中,可有效監測卸荷裂隙的(de)發展(zhan)趨勢,確保工(gong)程安全(quan);
在建筑工程領域(yu),能夠精準檢測房屋(wu)或結構裂(lie)縫的(de)位移情況,為建筑物的(de)健康診斷和維(wei)護(hu)提供科學(xue)依據(ju);
在交通、水利和市政(zheng)工(gong)程(cheng)中(zhong),同(tong)樣能夠發揮(hui)重(zhong)要作(zuo)用,確保基礎設(she)施的長期(qi)穩定運行(xing)。
通過高(gao)精度(du)的監測數據,幫助用戶及時采取應對措施,降低風險,保(bao)障工程(cheng)和人員安全。
二、裂縫監(jian)測站技術參(can)數
| 量程 | 0-1000mm |
| 精度 | ±0.02%F.S |
| 響應時間 | 1s |
| 外殼材質 | ABS |
| 供電電壓 | 12-24VDC(0.4W@12V) |
| 通訊方式 | modbus-485 |
| 太陽能板功率 | 8W |
| 太陽能板標準工作電壓 | DC5V |
| 內置鋰電池容量 | 5000mAh |
| 支架材質 | 不銹鋼 |
| 采集器 | 帶3年流量 |
| 數據傳輸 | 標配每10分鐘傳輸一次,支持定制 |
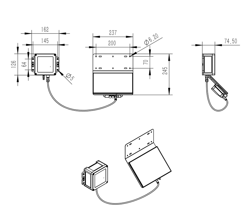
三、裂縫監測站產品(pin)尺寸圖(tu)

本文地址://juyicw.com/3101.html




風途首頁
電話咨詢
產品中心